Zakaj naročiti PZI (projekt za izvedbo), poleg tega, da je zakonsko obvezen? V tej fazi (po pridobitvi Gradbenega dovoljenja) že vemo marsikaj o novem objektu in vemo tudi to, da ga takega kot smo ga sprojektirali v DGD lahko zgradimo. V tej fazi se zato posvetimo načrtom, ki bodo potrebni, da se bo objekt zgradil. V mislih imamo sedaj samo gradnjo in življenje objekta v naslednjih desetletjih/stoletjih (prej smo imeli bolj Upravno enoto), torej kaj konkretno bo potreboval izvajalec (mi sami v primeru samogradnje) na gradbišču, da bo lahko uspešno zgradil objekt. Del PZI-ja so zato tudi popisi materiala in del, potrebnih za izgradnjo objekta. Razmišljamo torej o sami izvedbi, kako vse do najmanjše podrobnosti uskladiti med seboj. V PZI-ju določimo materiale in vrstni red slojev materialov v različnih delih objekta (stena, tla, strop, streha, predelna stena, …) Naslednji zelo pomemben del PZI-ja so detajli. Detajli so rešitev na papirju, kako se bodo najbolj kočljivi in ključni deli objekta izvedli. Če hočemo, da stvar funkcionira v resničnosti, mora v tem primeru prej že na papirju. Če gremo v gradnjo brez podrobnih načrtov in detajlov, bomo med samo gradnjo mnogokrat presenečeni. Saj če nismo ravno kot zelo redki geniji, ne moremo vsega iz glave predvideti že v naprej. Taka napaka pri gradnji nas lahko drago stane. Tudi pri enostanovanjskih objektih lahko parkrat preseže ceno PZI-ja. Potem je potrebno improvizirati ali dele objekta rušiti in na novo graditi. Še huje je, če se narejene napake sploh ne zavemo in se posledice pojavijo šele pri uporabi objekta. Take napake je pogosto težko in drago sanirati, če je sploh v celoti možno.
Pustimo sedaj to. Kar hočem povedati je, da je pri naravni gradnji, še toliko bolj pomembno, da si dom zgradimo kvalitetno. Naj bo to arhitekt, zunanji svetovalec, izvajalec ali investitor sam, nekdo se mora v projekt poglobiti in stati za tem, da se izvede čimbolj kvalitetno. Nekoga, ki izbere naravno gradnjo za svoj dom dojemam, kot nekoga, ki vidi dlje od svoje trenutne neposredne koristi, mu je mar za širšo družbo in širši svet. Če bomo naravno gradnjo gradili nekvalitetno, potem nismo dosti boljši od aktualne gradnje. Slabo zgrajena stavba bo nudila slabo bivalno okolje njenim prebivalcem. Tako stavbo bo potrebno obnavljati oz. prekmalu rušiti. Čeprav pri naravni gradnji ni težav pri odpadkih, se moramo zavedati, da odgovorno delamo tudi z naravnimi materiali. Zakaj bi vsakih par desetletij rušili in gradili stavbe, če imajo življensko dobo lahko več sto let? Kvalitetna gradnja se nam na kratki in še posebej na dolgi rok zelo izplača. Vedno bolj sem prepričan, da le kvalitetno zgrajena hiša tekom let vedno bolj pridobiva na vrednosti. Kvaliteta je tisto kar manjka večini izdelkov sodobne potrošniške družbe. Taki izdelki so največ vredni ko so novi. Takoj zatem začnejo izgubljati. Če imamo dovolj denarja jih čimprej zamenjamo in si kupimo nove. Narava seveda tako ne funkcionira in tak način seveda ne pelje nikamor drugam, kot da se bomo zadušili v svojih lastnih smeteh. Zato so danes proizvedeni izdelki (prvič v zgodovini človeštva) v bistvu smeti. Naravna gradnja kot jo jaz razumem in za katero stojim je popolno nasprotje tega. Kvalitetni izdelek se prav tako stara kot nekvalitetni, samo, da zdrži neprimerno več, ter da z leti in s človeško uporabo le še pridobiva na duhu. Kvalitetne stvari nekako okamenijo v času in se skoraj nehajo spreminjati. Mislim na primer na 900 let staro brunarico na Norveškem. Glede na to, da je vse kar je življenje, lahko dojemamo tako bivališče tudi kot staro modro bitje, ki je videlo in doživelo že marsikaj…

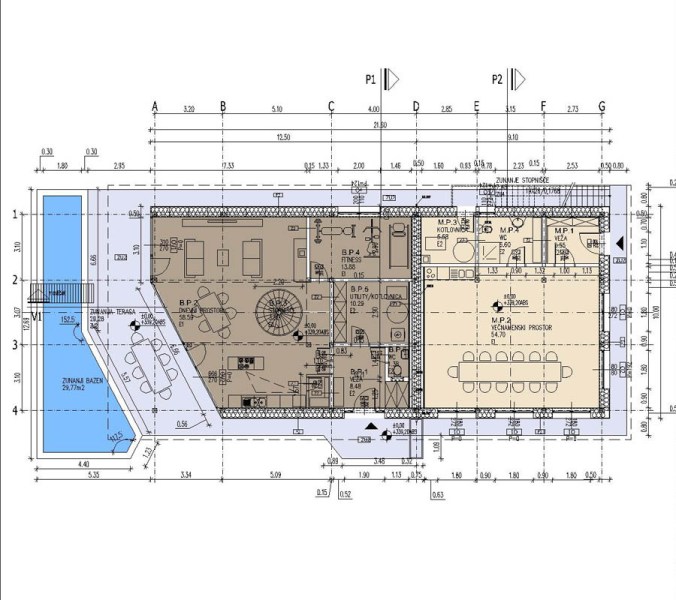
Primer tlorisa za zelo zahteven objekt. Nivo obdelave PZI.
Smo pa dandanes, četudi se dejstev glede kvalitete zavedamo, mnogokrat prisiljeni (ali je to samo izgovor), da posegamo po nekvalitetnih izdelkih. Tako namesto, da bi že prvič kupili ali naročili pri mizarju npr. kvaliteten stol in potem na kvalitetnem stolu sedeli celo življenje (ne ves čas), kupimo prvič nekvalitetnega, drugič spet itd. Nikoli ni sredstev za kvalitetnega. Tako tekom življenja sedimo na slabem, nezdravem stolu, ter kupimo na primer pet stolov, kar nas pride dražje od enega kvalitetnega. Zanamcem pa ne pustimo ničesar, razen smeti in skrbi, kaj naj sedaj z vsemi temi strupi in uničeno naravo… Splača se raje vzeti malo, pa to kvalitetno. Tega se vedno bolj zavedam. Namesto, da kupimo novo, lahko obnovimo kar že imamo…

Primer detajlnega prereza naravne gradnje (samonosna slamnata konstrukcija na lesenih pilotih)
Naravni materiali pri gradnji so zelo hvaležni in “delali” bodo za nas lahko vrsto let. Morajo pa biti pravilno vgrajeni. Gradnja z naravnimi materiali zahteva ogromno znanja o materialih in njihovi pravilni vgradnji. Nepravilno vgrajen material, začne lahko hitro ali šele čez čas opozarjati na to, da nekaj ne štima. Včasih je bilo to znanje vse prisotno v družbi in se je prenašalo iz roda v rod. Takrat PZI-ji niso bili potrebni. Danes je težko najti človeka, ki to obvlada. Vedeti moramo še to, da se danes gradijo stavbe z drugačnimi bivalnimi karakteristikami (notranja temperatura v prostorih, toplotna izolativnost, zrakotesnost, velikosti prostorov in okenskih odprtin, čistoča, čistost zraku, udobje…), kot včasih. Tako se lahko iz starega znanja učimo, medtem, ko razvijamo nove načine za nove dobe.

Fasadni pas hiše iz slamnatih bal narejen po najnovejših dognanjih v naravni gradnji. Tak detajlni izris omogoča preverbo za pravilno vgradnjo že na papirju (konstrukcijska trdnost, rešitev toplotnih mostov, ustrezni vrstni red materialov, potrebno zračenje in sušenje naravnih materialov, preprečevanje kondenzacije…)
Pri izdelavi PZI imamo torej prostor in čas, da posamezne podrobne načrte, elaborate… uskladimo med seboj, da skupaj tvorijo resnično optimalno harmonično celoto. S premislekom in sodelovanjem s strokovnjakom v času projektiranja, privarčujemo pozneje pri količinah potrebnega materiala za gradnjo, saj se dimenzije in količine materialov optimirajo in sodelujejo med seboj. Privarčujemo tudi pri hitrosti in enostavnosti same gradnje, saj že med projektiranjem izberemo investitorju najbližji sistem gradnje… Pozneje lahko bistveno privarčujemo pri ogrevanju in hlajenju stavbe. Izognemo se napakam.
PZI je zadnji stadij projektiranja pred gradnjo, ki ga dela projektant. Nekateri izvajalci (tesar, mizar…), si po potrebi izdelajo še delavniške načrte. To so načrti, kot jih potrebujejo sami, prilagojeni njihovemu konkretnemu načinu dela…, da stvar lažje izvedejo, zgradijo.

Primer detajlnega fasadnega pasu za enostanovanjsko hišo grajeno na način “spodbijanca”
Arhitekt (odgovorni vodja projekta) pove kateri načrti so obvezni za PZI. Naročnik poleg obveznih načrtov lahko naroči tudi dodatne, kot npr. Načrt krajinske arhitekture. PZI sestavljajo naslednji načrti in izkazi:
1 Načrt arhitekture (vodenje projekta in usklajevanje med posameznimi načrti)
1.1 Podrobni načrti M 1:50
1.2 Detajli, fasadni pasovi M 1:20, 1:25
1.3 Načrt notranje opreme (opcija)
1.4 Načrt razsvetljave (opcija)
2 Načrt s področja gradbeništva
2.1 Načrt gradbenih konstrukcij (statika, pozicije in dimenzije konstrukcijskih elementov)
2.2 Zunanja ureditev in odvodnjavanje
2.3 Kanalizacija in priključek fekalne kanalizacije
2.4 Vodovodni priključek in hidrantno omrežje
3 Načrt s področja elektrotehnike (določi in sprojektira se električne instalacijo v objektu: el. omarica, vtičnice, stikala…)
4 Načrt strojnih instalacij in strojne opreme (določi in sprojektira se sistem ogrevanja, hlajenja, prezračevanja, vodovoda, kanalizacije, ostalih instalacij v objektu)
5 Načrt s področja tehnologije (je redko potreben)
6 Načrt s področja požarne varnosti
7 Načrt s področja geotehnologije in rudarstva (geomehansko poročilo se izdela, da se lahko ustrezno načrtuje temelje zgradbe)
8 Načrt s področja geodezije (geodetski načrt se izdela ponavadi že čisto na začetku, v okviru izdelave idejne zasnove, “uradno” pa je del PZI projekta).
9 Načrt prometnega inženirstva (je redko potreben)
10 Načrt krajinske arhitekture (tehnična in zasaditvena ureditev zelenih in drugih zunanjih površin)
*vsi navedeni načrti vsebujejo tudi izdelane popise materiala in del
* Smiselno in po potrebi se lahko dodajo dodatne postavke, vključijo dodatni strokovnjaki (permakulturni načrtovalci, …)
Za enostanovanjske objekte se najpogosteje od zgornjih točk sprojektira točke: 1, 2, 3, 4, 6, 7, 8.
Izkazi kot del PZI:
- izkaz požarne varnosti
- izkaz toplotnih karakteristik stavbe
- izkaz zaščite pred hrupom
- izkaz energijskih karakteristik prezračevanja stavbe
Pred gradnjo Izvajalec naroči tudi izdelavo Varnostnega načrta

Fasadni pas hiše iz slamnatih bal s prezračevanimi betonskimi pasovnimi temelji.






